
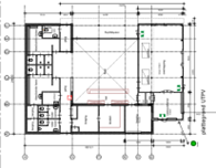
Tijdens de afgelopen ALV is het plan besproken om het terras bij UTPV aan te passen. Op drukke competitiedagen biedt het huidige paviljoen al onvoldoende ruimte om alle competitieteams binnen voldoende ruimte te bieden. Door de komst van 3 extra padelbanen zal de druk op het paviljoen en het terras, door o.a. meer spelers en deelnemers aan toernooien toenemen. Om dit op te kunnen vangen is het plan om het huidige terras, dat nu met het regenscherm overdekt wordt aan te passen. Hierbij wordt gedacht aan een “serre”-achtige oplossing met veel licht waarbij het huidige kantinedeel niet wordt vergroot.
Omdat een nieuwe uitbouw volgens het bestemmingsplan maar 4 m breed mocht worden (2 m minder breed dan het huidige terras tot de windschermen) is een plan ontworpen en is hiervoor een initiatiefplan ingediend. Na een aantal aanpassingen vereist vanuit Welstand en de BEA (Boom-Effect-Analyse) is voor het plan op 16 april goedkeuring ontvangen van de gemeente Breda.
De volgende stap zal nu zijn om met een aantal leden van UTPV, die vaak met keuken/bestuurskamer/bar te maken hebben, het plan te bespreken om tot een definitieve invulling te komen. Hierna kan dan de omgevingsvergunning worden aangevraagd en een prijsopgave worden gemaakt.
Zodra het plan en de benodigde investering volledig is uitgewerkt, wordt dit plan voorgelegd aan de algemene ledenvergadering.
Opmerking: pas na realisatie van dit plan kan het aantal competitieteams worden uitgebreid.









